Navigation
- एनसीटी दिल्ली के लिए उप-क्षेत्रीय योजना का मसौदा-2021
- सामान्य प्रशासन
- स्वच्छता ही सेवा अभियान
- एकीकृत नाली प्रबंधन प्रकोष्ठ (आईडीएमसी)
- अनधिकृत कॉलोनियों सेल (यूसी)
- दिल्ली के प्रवेश द्वारों का सौंदर्यीकरण
- नगर निकाय
- स्थानीय निकाय निदेशक
- लेखा और बजट
- संसद कक्ष
- राज्य नाम प्राधिकरण (एसएनए)
- अंतर्राष्ट्रीय मामले प्रकोष्ठ (आईसी)
- जल एवं सीवरेज क्षेत्र
- शहरी नवीकरण
- शहरी गांवों का विकास
- ट्रांस यमुना क्षेत्र विकास बोर्ड
- शहरी बुनियादी सेवा कार्यक्रम
- डिजिटल मैपिंग परियोजना
- कार्यान्वयन एजेंसियों को योजना निधि जारी करना
- सहायता अनुदान
- रात्रि आश्रय
- एमएलएएलएडी योजना की प्रगति रिपोर्ट
- ड्राफ्ट मॉडल टेनेंसी एक्ट 2020 के संबंध में
| SI. No. | Reg NO. | Title | Application Forms | Maps & Layout Plans |
|---|---|---|---|---|
| 551 | 590 | Rajeev Nagar, Begampur, Ph-3, Main Kanjhawala Road,Delhi-41 | Click Here | Click Here |
| 552 | 591 | Green Medows, Satbari Mehrauli, Delhi | Click Here | Click Here |
| 553 | 592 | Vivek Nagar, E-Block, Roshan Vihar , Ph-2, Najafgarh, Delhi | Click Here | Click Here |
| 554 | 593 | Rajeev Colony ext., Narela, Delhi-40 | Click Here | Click Here |
| 555 | 594 | Soniya Vihar, Sahadra, Delhi-94 | Click Here | Click Here , Click Here , Click Here , Click Here , Click Here , Click Here , Click Here |
| 556 | 595 | Ishwar Colony Ext.,III, Bawana, Delhi-39 | Click Here | Click Here |
| 557 | 596 | Prince Colony,Hari Nagar Ext.Pt-III, Block D, E & F, Delhi-44 | Click Here | Click Here , Click Here |
| 558 | 598 | Meetha Pur Colony-B Block, Badarpur, Delhi-44 | Click Here | Click Here , Click Here |
| 559 | 599 | Gagan Vihar Extn., Delhi-51 | Click Here | Click Here |
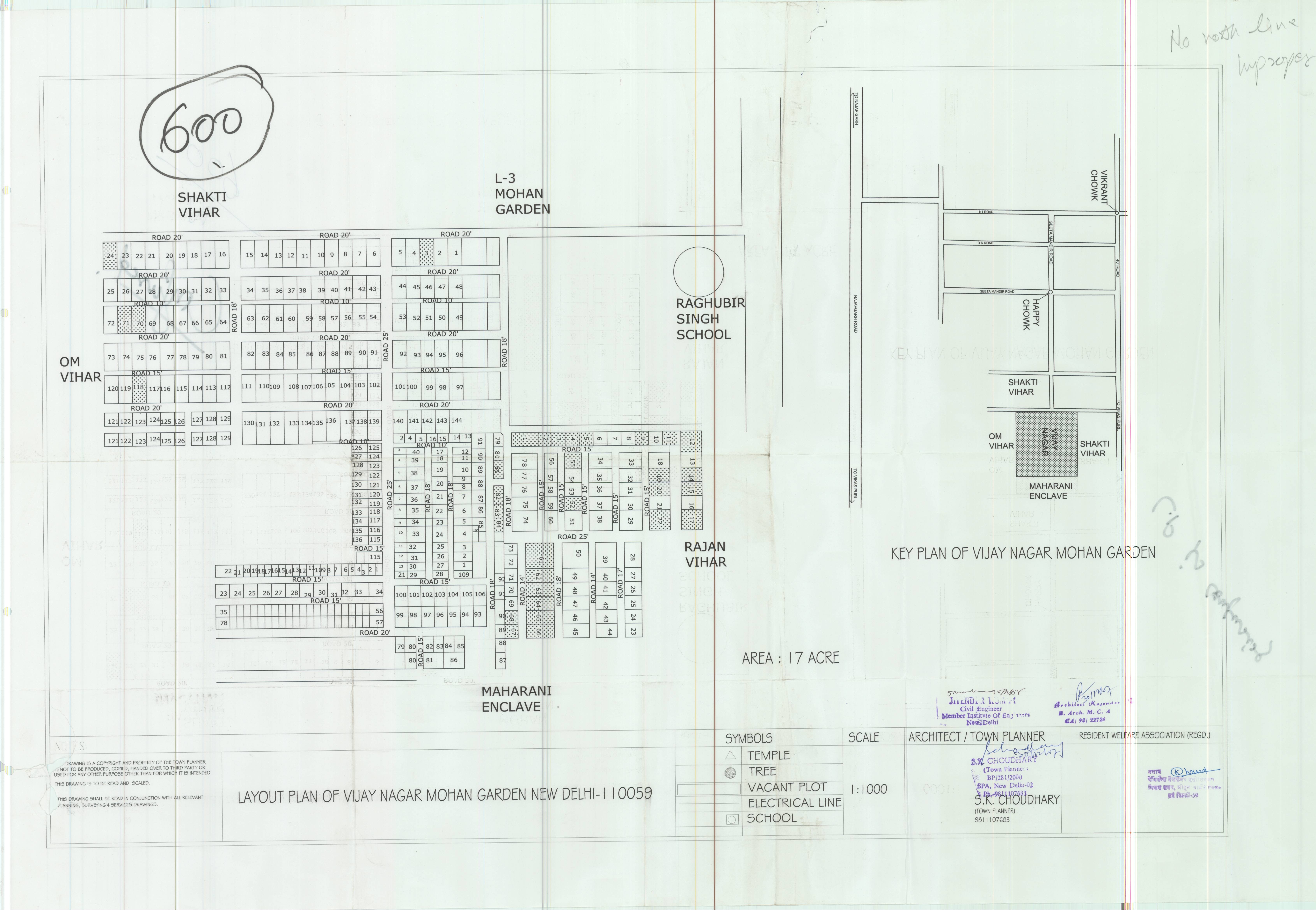
| 560 | 600 | Vijay Nagar Mohan Garden Extn., Uttam Nagar, Delhi-5 | Click Here | Click Here |
शहरी विकास विभाग (यू.डी)